大家知道AutoCAD看图设置测量比例的操作吗?下文小编就带来了AutoCAD看图设置测量比例的操作教程,一起来看看吧!
AutoCAD看图设置测量比例的操作流程

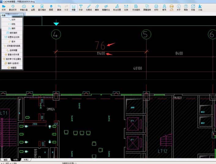
1、在布局中测量或大样图测量中,会遇到测量结果和标注不一致,如图。此时点击工具栏的“调整比例”按钮,进行测量比例调整。

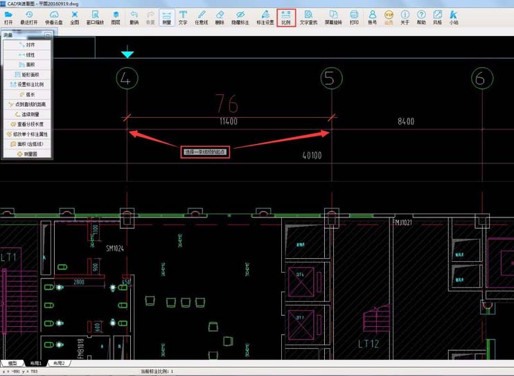
2、按照鼠标旁边的提示,选择一条已知长度的线段端点。

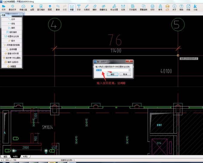
3、弹出对话框,填入实际距离(图纸上标注的),点击确定。

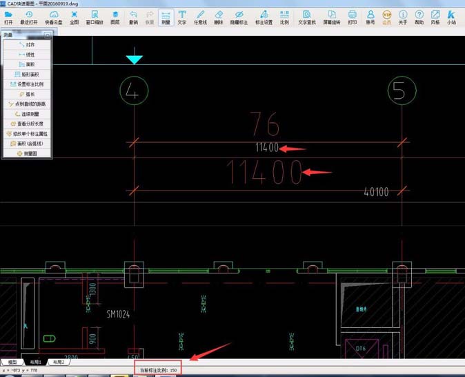
4、此时,重新测量刚才的线段,发现测量结果和标注一致。观察软件下方的当前比例,可以发现比例已经改变。

各位小伙伴们,看完上面的精彩内容,都清楚AutoCAD看图设置测量比例的操作流程了吧!