cdr制作三折页的相关操作介绍。
想必许多伙伴还不会cdr制作三折页的相关操作,不过没关系,下面就分享了cdr制作三折页的方法,希望感兴趣的朋友都来共同学习哦。
cdr制作三折页的相关操作介绍

打开cdr,新建一个分辨率300,A4大小。


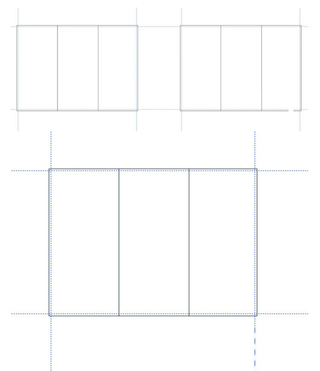
再画一个A4大小的矩形(210*297)横版的。四周各留三毫米。

三折页分为三部分,画三个矩形,分别是100*210 100*210 97*210.放到刚才画的A4矩形中。

这样三折页三个部分就做好啦,不过单页都是正反面的,所以再复制一个做好的,拖到旁边,一个就是正面一个就是背面。

最后模板就做完了。三折页连着设计时从左到右第二折也就是中间的这一折是封底,第三折也就是右边的这一折为封面. 最左边的一折一般印公司简介.
反面的三折都印产品内容

以上这里为各位分享了cdr制作三折页的相关操作方法。有需要的朋友赶快来看看本篇文章吧。
