小编教你AUTOCAD2004图形形位公差标注的操作方法 小编教你如何挑选遮光窗帘
相信很多朋友都遇到过以下问题,就是AUTOCAD2004图形形位公差标注的操作方法。针对这个问题,今天昊普教程小编就搜集了网上的相关信息,给大家做个AUTOCAD2004图形形位公差标注的操作方法的解答。希望看完这个教程之后能够解决大家AUTOCAD2004图形形位公差标注的操作方法的相关问题。
今天给大家讲的是AUTOCAD2004图形形位公差的标注方法,对AUTOCAD2004图形形位公差感兴趣的同学们就一起学习下具体方法吧!
AUTOCAD2004图形形位公差标注的操作方法

打开AUTOCAD2004软件,进入绘图界面

绘制如下图示的图形文件

为图形标注尺寸,及基准位置

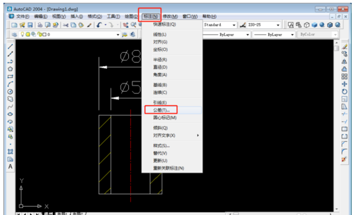
在菜单栏点击“标注/公差”,出现“形位公差”对话框


在形位公差对话框内,根据工程的需要,添加合适的形位公差值

点出确定,就得到如图所示的已经标注形位公差的图形

以上就是小编给大家带来的全部内容,大家都学会了吗?
