说说6CAD快速看图离线VIP的设置方法
相信很多朋友都遇到过以下问题,就是CAD快速看图离线VIP的设置方法。针对这个问题,今天昊普教程小编就搜集了网上的相关信息,给大家做个CAD快速看图离线VIP的设置方法的解答。希望看完这个教程之后能够解决大家CAD快速看图离线VIP的设置方法的相关问题。
刚入手CAD快速看图的用户,不清楚怎样设置离线VIP?现在就跟着小编一起来看一下CAD快速看图离线VIP的设置方法吧。
CAD快速看图离线VIP的设置方法

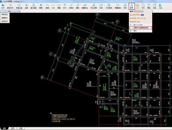
我们先打开CAD快速看图,点击“账号”按钮登录自己的快速看图账号。如果你是VIP会员,那么会在账号按钮里出现一个按钮“申请VIP功能离线使用”。如果你不是VIP会员,那么没有这个按钮。
然后我们点击“申请VIP功能离线使用”按钮,会出现成功提示。
最后我们点击“查看证书”,可以看到当前账号,可使用的期限等。此时就代表这台电脑可以在没有网络的情况下使用VIP功能了。
根据以上为你们描述的CAD快速看图离线VIP的设置方法,你们是不是都明白了呀!
