小编教你CAD快速看图设置测量比例的操作教程
相信很多朋友都遇到过以下问题,就是CAD快速看图设置测量比例的操作教程。针对这个问题,今天昊普教程小编就搜集了网上的相关信息,给大家做个CAD快速看图设置测量比例的操作教程的解答。希望看完这个教程之后能够解决大家CAD快速看图设置测量比例的操作教程的相关问题。
今天小编就带大家来共同学习CAD快速看图设置测量比例的操作教程,希望可以帮助到有需要的小伙伴哦,下面就是详细完整的操作步骤。
CAD快速看图设置测量比例的操作教程

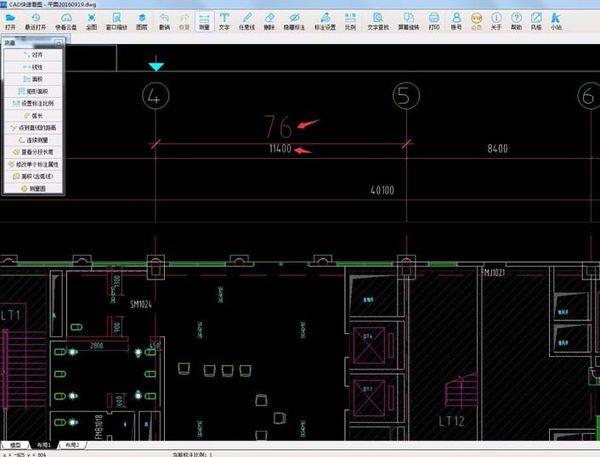
我们先在布局中测量或大样图测量中,会遇到测量结果和标注不一致,如图。此时点击工具栏的“调整比例”按钮,进行测量比例调整。
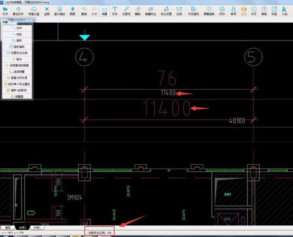
然后我们按照鼠标旁边的提示,选择一条已知长度的线段端点。
这时弹出对话框,填入实际距离(图纸上标注的),点击确定。
此时,重新测量刚才的线段,发现测量结果和标注一致。观察软件下方的当前比例,可以发现比例已经改变。
相信你们看完了上文所述的CAD快速看图设置测量比例的具体操作流程,大家应该都学会了吧!
