说说6天正建筑2014绘制建筑物顶层平面图的操作教程
相信很多朋友都遇到过以下问题,就是天正建筑2014绘制建筑物顶层平面图的操作教程。针对这个问题,今天昊普教程小编就搜集了网上的相关信息,给大家做个天正建筑2014绘制建筑物顶层平面图的操作教程的解答。希望看完这个教程之后能够解决大家天正建筑2014绘制建筑物顶层平面图的操作教程的相关问题。
你们知道天正建筑2014怎样绘制建筑物顶层平面图吗?怎么样开启这项功能呢?对此感兴趣的用户可以随小编去下文看看天正建筑2014绘制建筑物顶层平面图的具体操作方法。
天正建筑2014绘制建筑物顶层平面图的操作教程

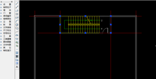
我们需要先打开天正建筑2014软件,并复制一份二层平面图,如下图所示

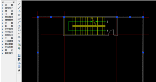
删除顶层没有的墙体、轴线、门、窗,删除完成后,如下图所示

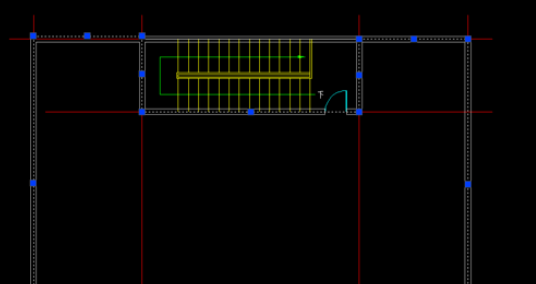
然后我们修改楼梯间的墙高,修改完成后,如下图所示

接着我们修改建筑物四周的墙体参数,修改为女儿墙,修改完成后,如下图所示

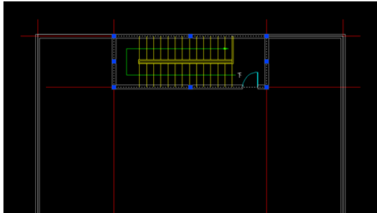
再绘制楼板,绘制完成后,如下图所示

绘制楼梯间的楼板,绘制完成后,如下图所示

在命令行输入“3DO”,点击回车键,进入“受约束的动态观察模式”,然后就可以直观的看到自己绘制的顶层平面图,如下图所示

最后我们可以改变一下“视觉样式”,看一下自己绘制的顶层平面图;在“受约束的动态观察”模式下点击鼠标右键,选择“视觉样式”,点击“真实”,如下图所示

看完了上文为你们讲述的天正建筑2014绘制建筑物顶层平面图的具体流程介绍,大家是不是都学会了啊!
