说说6天正建筑2014绘制双分三跑楼的操作教程
相信很多朋友都遇到过以下问题,就是天正建筑2014绘制双分三跑楼的操作教程。针对这个问题,今天昊普教程小编就搜集了网上的相关信息,给大家做个天正建筑2014绘制双分三跑楼的操作教程的解答。希望看完这个教程之后能够解决大家天正建筑2014绘制双分三跑楼的操作教程的相关问题。
当前不少网友表示自己才接触天正建筑2014.这款应用,还不晓得绘制双分三跑楼的操作,接下来就为你们分享天正建筑2014绘制双分三跑楼的操作流程,大家都来一起学习吧。
天正建筑2014绘制双分三跑楼的操作教程

我们需要先打开天正建筑2014软件,并简单绘制一个房间,如下图所示

然后我们点击“楼梯其他”,然后点击“双分三跑楼梯”,如下图所示


接着我们打开“双分三跑楼梯”编辑页面,依次选择自己需要的数据,如下图所示











这时我们在“双分三跑楼梯”编辑页面点击“确定”,如下图所示

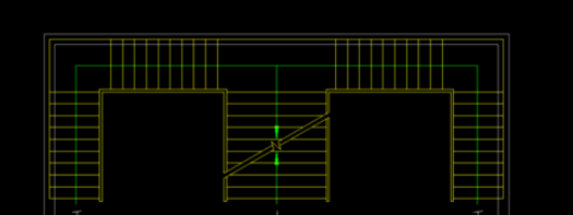
接下来我们根据命令行提示“点取位置”,绘制双分平行楼梯,如下图所示

绘制完成后,如下图所示

在命令行输入“3DO”,点击回车键,进入“受约束的动态观察模式”,然后就可以直观的看到自己绘制的双分三跑楼梯,如下图所示

最后一步我们可以改变一下“视觉样式”,看一下自己绘制的双分三跑楼梯;在“受约束的动态观察”模式下点击鼠标右键,选择“视觉样式”,点击“真实”,如下图所示

根据上文为你们讲述的天正建筑2014绘制双分三跑楼的详细操作方法,朋友们是不是都学会了呀!
