说说6Eplan更改背景颜色的操作方法 说说6用日语怎么说
相信很多朋友都遇到过以下问题,就是Eplan更改背景颜色的操作方法。针对这个问题,今天昊普教程小编就搜集了网上的相关信息,给大家做个Eplan更改背景颜色的操作方法的解答。希望看完这个教程之后能够解决大家Eplan更改背景颜色的操作方法的相关问题。
部分用户在使用Eplan软件的时候,并不是很熟悉其中Eplan更改背景颜色的操作方法?今日在这里小编就为各位带来了Eplan更改背景颜色的操作方法。
Eplan更改背景颜色的操作方法

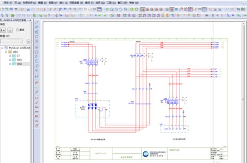
Eplan软件默认背景颜色是白色,类似于下图,其实用多了的伙伴会发现其实白色背景下有些数据和器件不够突出,看久了会引起视觉疲劳

要想把白色背景改为其他颜色,先要点击选型—设置

在设置的对话框中,点击左侧 用户—图形的编辑—2D,然后出现右侧的修改界面

在右侧的修改界面的点击 颜色的设置—配置,出现三个选择项,分别是白色、灰色、黑色

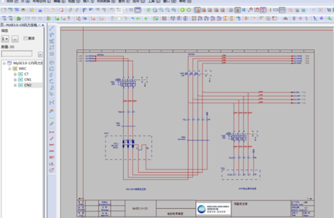
选择黑色,Eplan界面就会变成黑色,器件和数据会相对比较清晰,可缓解视觉疲劳。

选择灰色 ,EPlan的界面就会变成灰色,对一些喜欢灰色的朋友,可以选择此项

以上这里为各位分享了Eplan更改背景颜色的操作教程。有需要的朋友赶快来看看本篇文章吧。
