> 文章列表 > 我来说说SolidWorks制作散热孔的操作方法 我来说说是一种快乐作文150字

我来说说SolidWorks制作散热孔的操作方法 我来说说是一种快乐作文150字

相信很多朋友都遇到过以下问题,就是SolidWorks制作散热孔的操作方法。针对这个问题,今天昊普教程小编就搜集了网上的相关信息,给大家做个SolidWorks制作散热孔的操作方法的解答。希望看完这个教程之后能够解决大家SolidWorks制作散热孔的操作方法的相关问题。

相信有的朋友对于SolidWorks制作散热孔的简单操作还不是很了解,而今天小编就带来了SolidWorks制作散热孔的操作教程,有需要的朋友就跟小编一起来学习一下吧。

SolidWorks制作散热孔的操作方法

我来说说SolidWorks制作散热孔的操作方法 我来说说是一种快乐作文150字

1、打开SolidWorks,新建一个零件模型。在前视基准面上绘制草图,创建基体法兰,如图。钣金厚度“1 mm”,折弯半径“1
mm”,方向为两侧对称,深度“100 mm”。

SolidWorks制作散热孔的操作方法截图

SolidWorks制作散热孔的操作方法截图

2、单击“钣金—展开”命令,如图,可展开单个的折弯。

SolidWorks制作散热孔的操作方法截图

3、选择固定面和要展开的折弯,单击确定,展开折弯。

SolidWorks制作散热孔的操作方法截图

SolidWorks制作散热孔的操作方法截图

SolidWorks制作散热孔的操作方法截图

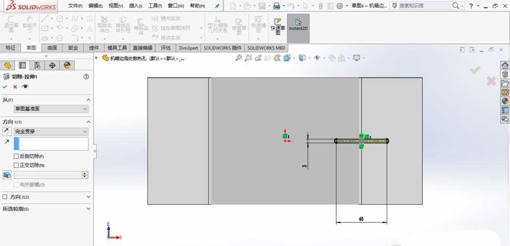
4、在图示端面上绘制草图,创建切除特征,完全贯穿,如图。

SolidWorks制作散热孔的操作方法截图

5、阵列切除拉伸特征,如图。

SolidWorks制作散热孔的操作方法截图

6、镜像阵列特征,镜像面选择右视基准面。

SolidWorks制作散热孔的操作方法截图

7、单击“钣金—折叠”命令,如图,可将单个折弯折叠。

SolidWorks制作散热孔的操作方法截图

8、选择要折叠的折弯,单击确定,将创建完边角散热孔的机箱重新折叠。

SolidWorks制作散热孔的操作方法截图

SolidWorks制作散热孔的操作方法截图

9、至此,完成机箱边角处散热孔的创建。保存模型。

SolidWorks制作散热孔的操作方法截图

SolidWorks制作散热孔的操作方法截图

上面就是小编为大家带来的SolidWorks制作散热孔的操作教程,一起来学习学习吧。相信是可以帮助到一些新用户的。